一、概述:
LN2-40.5型戶內高壓SF6斷路器是交流50Hz三相系統中的戶內裝置,可供工礦企業、發電廠、變電站(所)作保護和控制之用。并可用于頻繁操作的場所,也可作為聯絡斷路器和切合電容器組斷路器。
LN2-40.5型配用CT10、17、19或連體型彈簧操動機構。LN2-40.5型SF6斷路器可配GBC-40.5、JYN1-40.5、XGN17-40.5開關柜,也可配KYN61-40.5、 KYN10-40.5金屬封閉移開式高壓開關柜。
本產品符合LN2-40.5型斷路器符合GB1984《交流高壓斷路器》國家標準、JB/T9694《六氟化硫斷路器通用技術條件》和IEC有關標準的規定。
二、使用環境條件:
環境溫度: 最低-25℃ 最高+40℃
海拔高度: 不大于 2000 m
地震烈度: 不大于8度
相對濕度: 日平均不大于95%,月平均不大于90%。
無火災.爆炸危險.無腐蝕性氣體及劇烈震動場所。
三、斷路器主要技術參數∶
斷路器主要技術參數見下表1:
表1
序號 名 稱 單 位 參 數
1 額定電壓 kV 40.5
2 額 定 頻 率 Hz 50
3 額 定 電 流 A 1600
4 額定短路開斷電流 kA 25
5 額定短路關合電流(峰值) 63
6 額定短時耐受電流(4S) 25
7 額定峰值耐受電流 63
8 額定電容器組開斷電流 A 800
9 開斷小電感電流 0.5~15
10 額定操作順序 O-0.3s-CO-180s-CO
11 合閘時間 ms ≤ 150
12 分閘時間 ms ≤ 60
13 絕緣水平 額定雷電沖擊耐壓 kV 185
1 min工頻耐壓 95
14 額定短路電流開斷次數 次 8
15 機 械 壽 命 6000
16 額定電流開斷次數 2000
17 額定失步開斷電流 6.3
18 SF6額定氣壓(20℃表壓) 0.65
19 報警壓力(20℃時) 0.62
20 閉鎖壓力(20℃時) 0.59
21 年漏氣率 ≤ 1%
22 水分含量 ppm ≤ 150
23 六氟化硫氣體重量 kg 約2.5
24 斷路器總重量 約135
25 外形尺寸(寬*深*高)(相距300) mm 1192*903*1640(配KYN61-40.5)
(相距360) mm 1090*1397*1863(配KYN10-40.5)
(相距460) mm 1212*1350*1800(配JYN1-40.5)
四 、 斷路器主要機械特性調整參數∶
斷路器主要機械特性調整參數見下表2:
表2
序號 名 稱 單 位 LN2-40.5
1 觸頭行程 mm
2 電動合閘位置導電桿上端距上絕緣筒上端尺寸A 84±1.5
3 合閘速度 m/s ≥1.9
4 分閘速度 1.9~2.5
5 三相觸頭分,合閘同期性 ms ≤ 2
6 各相回路電阻 μΩ ≤ 45 公司簡介
我公司專業生產12-40.5KV戶內外高壓斷路器,永磁真空斷路器,智能、預付費、小型化、雙電源、看門狗等真空斷路器,六氟化硫斷路器,負荷開關,隔離開關,高壓操作機構、變壓器等高壓電器。自創建以來一直本著“質量第一,服務至上“的經營宗旨。不折不扣做好售前售中售后服務各處之細節,本顧客之所想,為在電氣行業中做得更加優秀,而努力奮斗不止。公司堅持走高新技術之路,堅持高新技術產品的研發,近年來陸續開發了10KV智能永磁快速真空斷路器,高壓智能雙電源自動轉換裝置等,并針對智能電網的新要求,高壓斷路器本體能更快速地動作,具有更小的分散性、更高的可靠性,最終達到同步關合的要求,而隨著我國電網不斷擴大及用電負荷的迅猛增長,原有10KV電壓等級配電網難以滿足供電要求,公司適時開發出了24KV戶外永磁快速真空斷路器,特別是在小型化斷路器上有全新的發展,針對35KV真空斷路器取得了突破性的成功。公司將結合對電力設備市場導向的分析,繼續并努力開發高新產品。
公司秉承“和、信、新”的企業理念,建設“以人為本、誠信為骨、創新為魂”的企業文化精髓;以和諧團隊,建設可持續發展的高新技術企業,經營信守承諾的一流品牌;堅持國際最高專業標準,走差異化發展道路。真誠歡迎國內外人士與我們建立長期的技術交流及雙贏的合作關系。
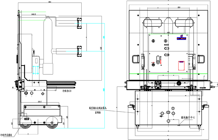
四、產品尺寸結構

五、售后服務
1. 我司出售的所有產品保修期為一年,保修期內免費上門維修,本公司將根據保修單的詳細規定予以修理和更換(人為因素或不可抗拒的自然現象所引起的故障或破壞除外)。
2. 在接到報修通知后,七個工作日內趕到現場并解決問題。
3. 用戶可以通過電話咨詢有關技術問題,并得到明確的解決方案。
4. 用戶在正常使用中出現性能故障時,本公司承諾以上保修服務。除此以外,國家適用法律法規另有明確規定的,本公司將遵照相關法律法規執行。
5. 在保修期內,以下情況將實行有償維修服務;
a.由于人為或不可抗拒的自然現象而發生的損壞;
b.由于操作不當而造成的故障或損壞;
c.由于對產品的改造、分解、組裝而發生的故障或損壞。