VS1-12M永磁真空斷路器(以下簡稱斷路器)是用于12kV電力系統的戶內開關設備,作為電網設備、工礦企業動力設備的保護和控制單元。由于斷路器采用永磁機構與直接傳動結構設計,使其具有優異的性能,特別適用于頻繁操作,或多次開斷短路電流的場所。斷路器配用專用推進機構,組成手車單元。
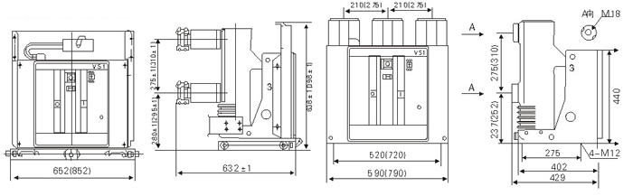
四、外形及安裝尺寸
一、產品概述
二、型號及含義
三、主要技術參數
序號
項目
單位
數據
1
額定電壓
KV
12M
2
最高工作電壓
KV
630
630
630
3
額定電流
A
1250
1250
1250
4
額定短路開斷電流
KA
20
25
31.5
5
額定短路關合電流
KA
50
63
80
6
額定峰值耐受電流
KA
50
63
80
7
4S額定短路耐受電流
KA
20
25
31.5
8
額定絕緣水平
工頻耐壓(額定開斷前后)
KV
42(斷口48)
沖擊耐壓(額定開斷前后)
75(斷口84)
9
額定操作順序
?
分-0.3-合分180s-合分
10
機械壽命
次
1000
11
額定短路開斷電流開斷次數
次
50
12
操作機構額定合閘電壓(直流)
V
110,220
13
操作機構額定分閘電壓(直流)
V
110,220
14
觸頭行程
mm
11±1
15
超行程(觸頭彈簧壓縮長度)
mm
3.5±0.5
16
三相分、合閘彈跳時間
ms
≤2
17
觸頭合閘彈跳時間
ms
≤2
18
平均分閘速度
m/s
0.9~0.12
19
平均合閘速度
m/s
0.4~0.8
20
分閘時間
最高操作電壓下
s
≤0.05
最低操作電壓下
≤0.08
21
合閘時間
s
0.1
22
各相主回路電阻
υΩ
60
50
23
動靜觸頭、允許磨損累積厚度
mm
3
